place
Наши филиалы: Могилев

Свободное назначение

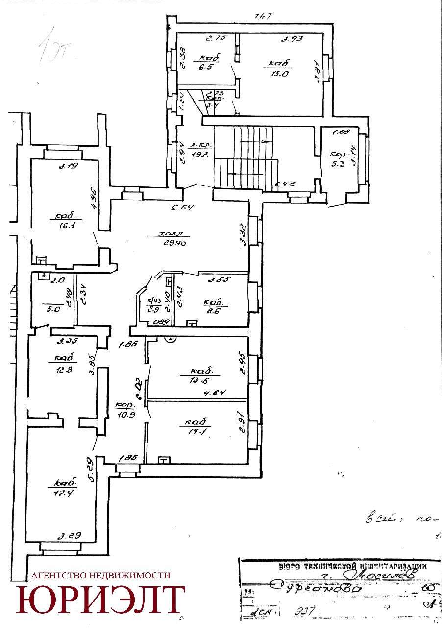
Продажа Могилёв, Сурганова, 10

В продаже коммерческое помещение, расположенное по адресу: улица Сурганова д. 10.

Первый и цокольный этажи 10-ти этажного кирпичного дома 2002 года постройки. Есть гараж и своя территория, удобная парковка.

 

Общая площадь 371 кв.м.

Площадь земли 0,0593 га.

 

Помещение подготовлено для оказания медицинских услуг. Все технические, инженерные, монтажные работы – выполнены в соответствии со всеми необходимыми требованиями.

Отделка внутри помещения по всем современным санитарным нормам.

Возможно использование под административное назначение.

 

Просмотр в удобное для вас время, по предварительной договорённости.

 

Договор 34/16 от 12.03.2025г.

 

ОДО «Юриэлт», УНП 101214439,

Лицензия

Министерства юстиции РБ

N°02240/8 от 17.02.2005 года (бессрочная) на право осуществления деятельности по оказанию юридических услуг - риэлтерских услуг.

731 288.10 BYN 249 000.00$
Предложить свою цену
Заполните телефон!
Введите цену или отметьте галочкой "Консультация по кредиту"
Нажимая "Отправить" я даю согласие на обработку персональных данных
Область
Могилёвская область
Район области
Могилёвский
Площадь, м2
371
Кол-во помещений
15
Этаж
1/10
Год постройки
2002
Материалы дома
Кирпич
Участок, с
5.93
Номер и дата договора
34/16 от 12-03-2025
Посмотреть на карте