place
Наши филиалы: Могилев

Коттедж

Продажа Могилёв, 1-й Кузнецкий

В самом центре города Могилева по пер.1-й Кузнецкий продаётся шикарный двухэтажный дом с цокольным этажем.

 

Дом с гаражом 2014 года постройки, расположен на участке 8 соток. 

 

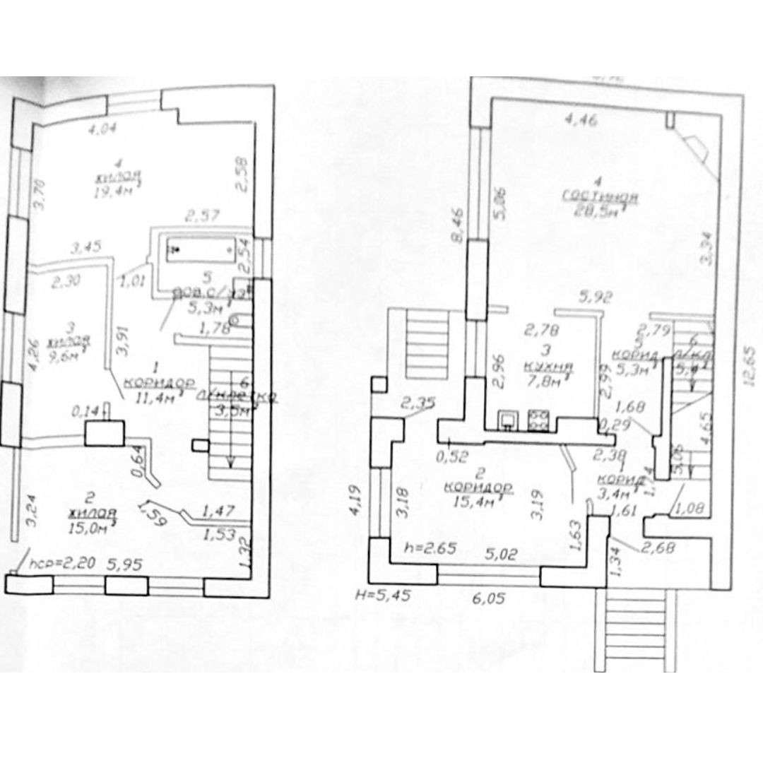
Общая площадь 195 м2, жилая 111 м2, гараж 31м2. 

 

На цокольном этаже расположена:  сауна отапливаемая дровами, душ,  сан.узел. 

На первом этаже расположены: комната для гостей, кухня со столовой, камин и санузел. 

На втором этаже расположены 3 комнаты со встроенной мебелью, ванная и сан.узел.

Дом отапливается двухконтурным  газовым котлом, водопровод и канализация - центральные, материал крыши- цементно-песчаная черепица. 

 

На участке расположена беседка, зона барбекю.

 

Дом полностью продается с мебелью и техникой.

 

Более подробную информацию можно узнать по номеру телефона.Показ по предварительной договорённости в удобное для вас время.

 

Договор 136/16 от 15.08.2024

 

ОДО «Юриэлт», УНП 101214439,Лицензия Министерства юстиции РБ №02240/8 от 17.02.2005 года (бессрочная) на право осуществления деятельности по оказанию юридических услуг - риэлтерских услуг.

424 724.50 BYN 149 000.00$ 2 178.07 BYN/м2 764.10$/м2
Предложить свою цену
Заполните телефон!
Введите цену или отметьте галочкой "Консультация по кредиту"
Нажимая "Отправить" я даю согласие на обработку персональных данных
Область
Могилёвская область
Район области
Могилёвский
Участок, с
8
Площадь(О/Ж/К)
195.00/111.00/-
Количество уровней
2
Год постройки
2014
Количество комнат
5
Материалы дома
Блок
Крыша
Другое
Ремонт
Евро
Отопление
Газовое
Газовое
Газоснабжение
Есть
Водоснабжение
Центральный водопровод
Канализация
Центральная
Номер и дата договора
136/16 от 15-08-2024
Посмотреть на карте