place
Наши филиалы: Могилев

Жилой дом в Могилёве по переулку Карабановскому 4-му

 

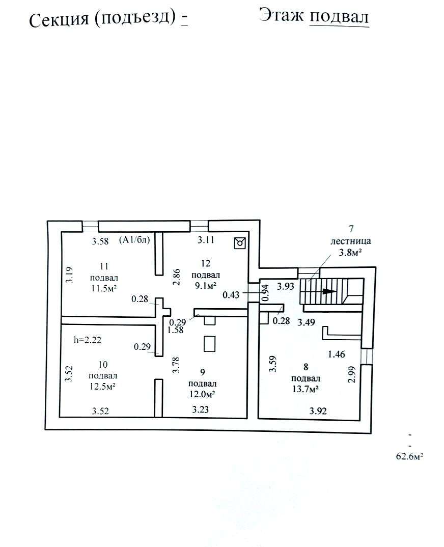
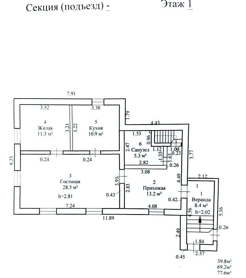
Дом построен из газоселикатных блоков и введен в эксплуатацию в 2024 году. Наружная площадь (площадь застройки) составляет 106 м2/ общая площадь здания 140,2 м2/ общая площадь жилых помещений 69,2 м2/ жилая площадь 39,8 м2, есть подвал и мансарда. Крыша из оцинкованного листа.

 

Участок 0.0724 га, на участке есть еще сарай, все коммуникации: городская канализация, центральный водопровод, электричество, газ введен в дом, но обрезан, стоит двухконтурный газовый котел - не подключен, на 2-й этаж выведена канализация и вода.

 

Стоимость дома указана с учетом торга реальному покупателю. Просмотр по предварительной договоренности.

 

Договор N 60/16 от 26.04.2025 г.

 

ОДО «Юриэлт», УНП 101214439,

Лицензия Министерства юстиции РБ

N°02240/8 от 17.02.2005 года (бессрочная) на право осуществления деятельности по оказанию юридических услуг - риэлтерских услуг.

191 740.60 BYN 67 000.00$ 1 367.63 BYN/м2 477.89$/м2
Предложить свою цену
Заполните телефон!
Введите цену или отметьте галочкой "Консультация по кредиту"
Нажимая "Отправить" я даю согласие на обработку персональных данных
Область
Могилёвская область
Район области
Могилёвский
Участок, с
7.24
Площадь(О/Ж/К)
140.20/69.20/-
Количество уровней
2
Материалы дома
Блок
Водоснабжение
Центральный водопровод
Канализация
Центральная
Номер и дата договора
60/16 от 26-04-2025
Посмотреть на карте