place
Наши филиалы: Могилев

3 комнатная квартира

Продажа Осиповичи, Риммы Кунько, 7

Продаётся просторная 3-х комнатная квартира в центре города Осиповичи.

 

Чистый и светлый подъезд. Хорошие соседи. Квартира светлая. Входная дверь металлическая. Полы - паркет, ламинат. Двери новые. Потолки - натяжные. В доме есть подвал.

 

Квартира укомплектована современной техникой и мебелью.

 

Она может быть отличным вариантом для сдачи в аренду и семьям военных.

 

Развитая инфраструктура. Рядом расположены: школа, детсады, поликлиника, магазины, спортивный комплекс, банк, аптека.

 

Чистый, экологичный р-н, в 3-х км река Свислочь (Осиповичское водохранилище).

 

Отличное транспортное сообщение, до ж/д станции 7 минут ходьбы. Маршрутка до Минска 1,15 минут.

 

Ещё больше объектов недвижимости в нашем Telegram-канале @urielt_minsk

133 406.00 BYN 45 500.00$ 2 114.21 BYN/м2 721.08$/м2
Предложить свою цену
Заполните телефон!
Введите цену или отметьте галочкой "Консультация по кредиту"
Нажимая "Отправить" я даю согласие на обработку персональных данных
Область
Могилёвская область
Район области
Осиповичский
Кол-во комнат квартиры
3
Кол-во раздельных комнат
3
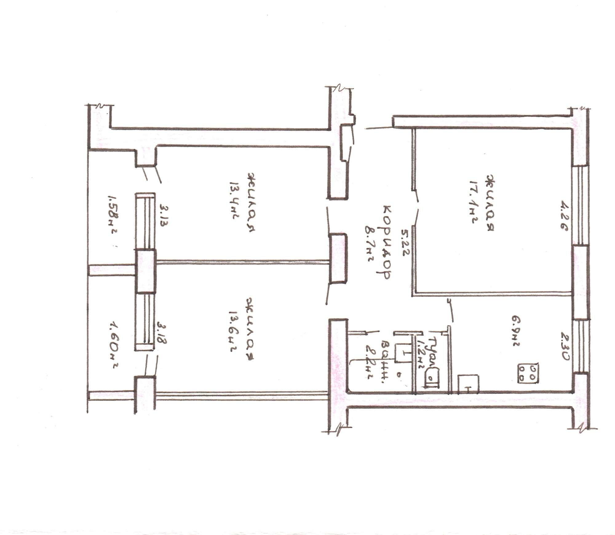
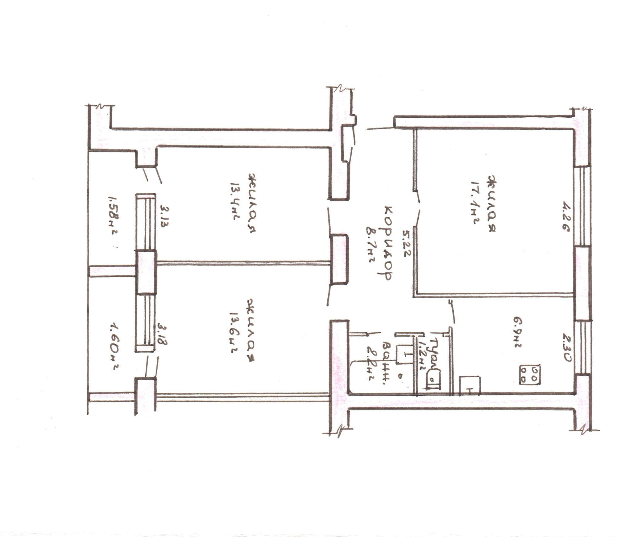
Площадь(О/Ж/К)
63.10/44.10/6.90
Этаж
2/5
Год постройки
1974
Материалы дома
Кирпич
Ремонт
Хороший
Балконы
Лоджия застеклена: 2
Сан. узел (кол-во)
Раздельный: 1
Номер и дата договора
23/1 от 18-02-2025
Посмотреть на карте