place
Наши филиалы: Могилев

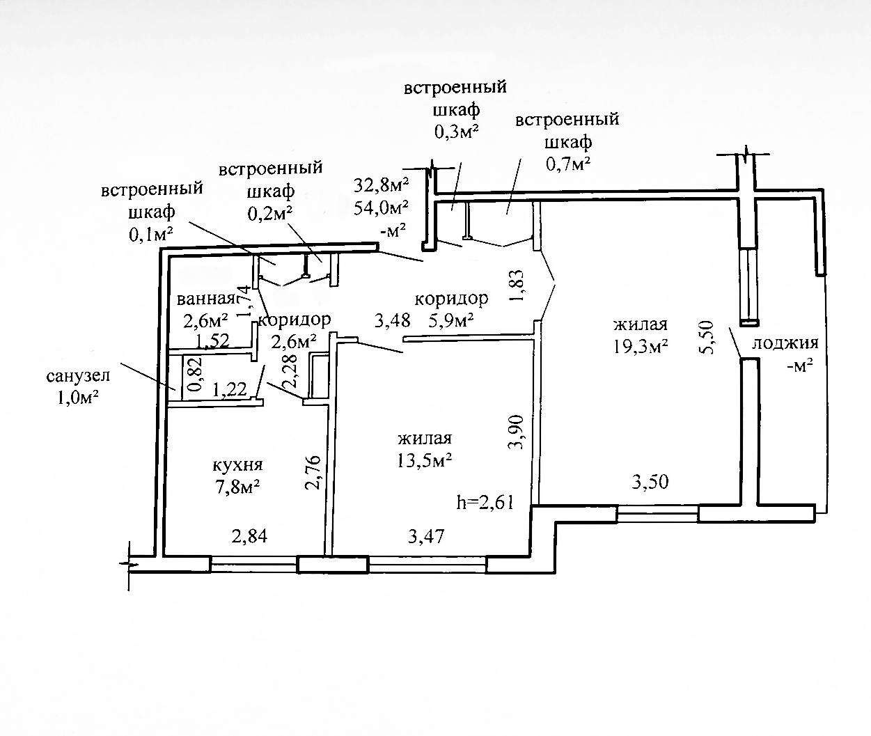
2 комнатная квартира

Продажа Могилёв, Мовчанского, 63

В продаже 2-комнатная квартира по ул.Мовчанского,63.

Располагается на 6 этаже 9-этажного крупнопанельного дома.

Общая площадь 54 м. кв., жилая 32.8 м. кв., кухня 7.8 м. кв.

В квартире сделан современный качественный ремонт.

Залита стяжка, выровнены стены.

После продажи остается вся мебель и качественная техника, а именно-диван, кровать на два спальных места, холодильник, стиральная машина, варочная панель, духовой шкаф, микроволновая печь.

Имеется большая лоджия - 6 м. кв.

Дом расположен в районе, с хорошо развитой инфраструктурой.

В шаговой доступности находятся школы, гимназия, детские сады, амбулатория, несколько торговых центров, оздоровительный комплекс H20.

 

Остальную информацию вы можете получить по номеру, указанному в объявлении.

Показ возможен в любое время по предварительной договоренности.

 

Договор 170/16 от 01.12.2025г.

 

ОДО «Юриэлт», УНП 101214439, Лицензия Министерства юстиции РБ №02240/8 от 17.02.2005 года (бессрочная) на право осуществления деятельности по оказанию юридических услуг - риэлтерских услуг.

231 925.73 BYN 79 900.00$ 4 294.92 BYN/м2 1 479.63$/м2
Предложить свою цену
Заполните телефон!
Введите цену или отметьте галочкой "Консультация по кредиту"
Нажимая "Отправить" я даю согласие на обработку персональных данных
Область
Могилёвская область
Район области
Могилёвский
Кол-во комнат квартиры
2
Кол-во раздельных комнат
2
Площадь(О/Ж/К)
54.00/32.80/7.80
Этаж
6/9
Материалы дома
Панель
Ремонт
Косметический
Балконы
Лоджия застеклена: 2
Сан. узел (кол-во)
Раздельный: 1
Номер и дата договора
170/16 от 01-12-2025
Посмотреть на карте