place
Наши филиалы: Могилев

2 комнатная квартира

Продажа Могилёв, Бурденко, 4

В продаже 2-комнатная квартира в центре города по адресу: г.Могилев, ул.Бурденко, 4, на 5 этаже 9-этажного панельного дома 1988 года постройки. Тамбур на две квартиры.

 

В квартире выполнен аккуратный косметический ремонт. Квартира продаётся с корпусной мебелью.

 

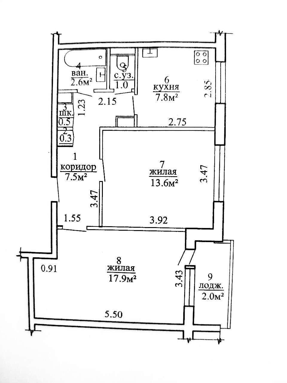
Квартира не угловая, общей площадью 51,2 кв.м (+ 2 кв.м. застеклённая лоджия). Включает: площадь жилых комнат - 17,9 кв.м. и 13,6 кв.м., прихожая - 7,5 кв.м. (+0,8 кв.м. встроенный шкафы), кухня - 7,8 кв.м., ванная комната - 2,6 кв.м., санузел - 1,0 кв.м. (см.фото тех. паспорта).

Квартира теплая, сухая, с хорошей планировкой, комнаты не проходные. Все окна - ПВХ. Высота потолков - 2,6 м.

 

Вся инфраструктура в шаговой доступности ( 2 дет.сада, школы, мини-рынок, РКЦ, ФОК, различные магазины и т.д.).

В непосредственной близости и остановки общественного транспорта (2 минуты ходьбы). 2 остановки общ.транспорта до Драмтеатра.

 

Все детали состояния квартиры видны на фото.

 

Остальную информацию в

Вы можете получить по номеру, указанному в объявлении. Можем выслать больше фотографий по личному запросу. Приглашаем на показ по предварительной договоренности.

 

При необходимости поможем в продаже Вашей недвижимости для покупки этой.

 

Договор 10/16 от 22.01.2026г

 

ОДО «Юриэлт», УНП 101214439, Лицензия Министерства юстиции РБ №02240/8 от 17.02.2005 года (бессрочная) на право осуществления деятельности по оказанию юридических услуг - риэлтерских услуг.

157 399.00 BYN 55 000.00$ 3 074.20 BYN/м2 1 074.22$/м2
Предложить свою цену
Заполните телефон!
Введите цену или отметьте галочкой "Консультация по кредиту"
Нажимая "Отправить" я даю согласие на обработку персональных данных
Область
Могилёвская область
Район области
Могилёвский
Кол-во комнат квартиры
2
Кол-во раздельных комнат
2
Площадь(О/Ж/К)
51.20/31.50/-
Этаж
5/9
Материалы дома
Панель
Номер и дата договора
10/16 от 22-01-2026
Посмотреть на карте