place
Наши филиалы: Могилев

2 комнатная квартира

Продажа Могилёв, Большая Машековская, 13 к.А

В продаже 2-х комнатная квартира в центре города по адресу: г.Могилев, ул.Большая Машековская, 13а, с 9-го этажа 10-этажного кирпичного дома 2000 года постройки открывается прекрасный вид из окон.

 

Вся инфраструктура (в т.ч. ЦВР "Агат", магазин "Плюс", ресторан "Шале", аптеки, банк, СШ9, несколько детских садов) в пешей доступности.

До остановки общественного транспорта 2 минуты пешком.

Парковочных мест достаточно.

 

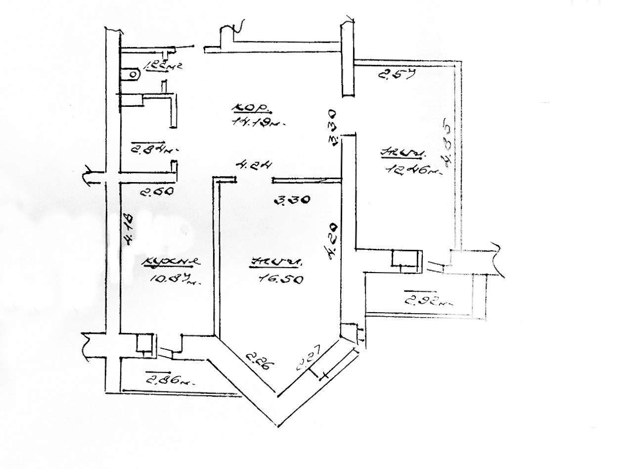
Квартира общей площадью 58,08

кв.м (без учета площади лоджий). Включает: площадь жилых комнат - 16,50 кв.м. и 12,46 кв.м., прихожая - 14,19 кв.м., кухня - 10,87 кв.м., ванная комната - 2,84 кв.м., санузел - 1,22 кв.м, две лоджии - 2,92 кв.м. и 2,86 кв.м. Высота потолков -2,50 (см.фото тех. паспорта).

 

Просторный тамбур (прихожая) со шкафом-купе на две квартиры.

Функциональная планировка, просторные комнаты разделены. Квартира не угловая, теплая, сухая.

 

Состояние квартиры - жилое с ремонтом.

На полу - натуральная доска, покрытая лаком, и плитка.

Окна ПВХ, на лоджии - с алюминиевой рамой.

 

Остальную информацию в

Вы можете получить по номеру, указанному в объявлении. Приглашаем на показ в любое удобное время по предварительной договоренности.

 

При необходимости поможем в продаже Вашей недвижимости для покупки этой.

 

Договор 176/16 от 15.12.2025г

 

ОДО «Юриэлт», УНП 101214439, Лицензия Министерства юстиции РБ №02240/8 от 17.02.2005 года (бессрочная) на право осуществления деятельности по оказанию юридических услуг - риэлтерских услуг.

198 895.10 BYN 69 500.00$ 3 424.52 BYN/м2 1 196.63$/м2
Предложить свою цену
Заполните телефон!
Введите цену или отметьте галочкой "Консультация по кредиту"
Нажимая "Отправить" я даю согласие на обработку персональных данных
Область
Могилёвская область
Район области
Могилёвский
Кол-во комнат квартиры
2
Кол-во раздельных комнат
2
Площадь(О/Ж/К)
58.08/28.96/10.87
Этаж
9/10
Год постройки
2000
Материалы дома
Кирпич
Ремонт
Косметический
Балконы
Лоджия застеклена: 2
Сан. узел (кол-во)
Раздельный: 1
Высота потолка
2.5
Номер и дата договора
176/16 от 15-12-2025
Посмотреть на карте