place
Наши филиалы: Могилев

2 комнатная квартира

Продажа Могилёв, Аркадия Кулешова, 12

В продаже 2-комнатная квартира по адресу: г. Могилев, ул. А.Кулешова, 12, напротив ЖК Зодиак, на 9 этаже 10-этажного панельного дома 2010 года постройки.

 

Прекрасная локация, экологичный район Областной больницы, Спутник: отличное транспортное сообщение, вся инфраструктура в шаговой доступности (школа с бассейном, два дет.сад, в т.ч. с бассейном, Евроопт через дорогу, в целом: различные ТЦ, магазины, пункты питания, мед.центр, игровые площадки и т.д.), Печерский лесопарк, велодорожки, дорожки для прогулок.

В непосредственной близости остановка общественного транспорта (1 минута ходьбы).

Большая парковка.

 

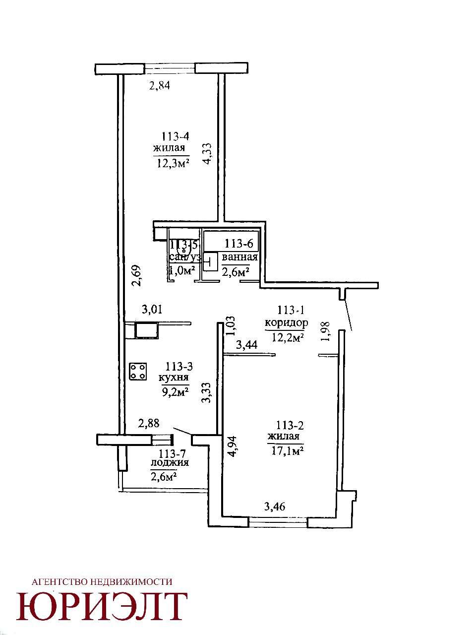
Квартира общей площадью 54,4 кв. м (+ 2,6 кв. м. застеклённая лоджия). (см. фото тех. паспорта).

Квартира не угловая, теплая, сухая, улучшенной планировки, комнаты не проходные. Все окна - ПВХ. Высота потолков - 2,6 м.

 

Квартира продаётся с представленной мебелью и техникой. Детали состояния квартиры видны на фото.

Деревянное напольное покрытие уложено качественно, не скрипит.

 

Остальную информацию в

Вы можете получить по номеру, указанному в объявлении. Можем выслать больше фотографий по личному запросу. Приглашаем на показ по предварительной договоренности.

 

Цена: 72.000$

 

Евгения: +37529 398 08 47

 

При необходимости поможем в продаже Вашей недвижимости для покупки этой.

 

Договор 49/16 от 22.04.2026г.

 

ОДО «Юриэлт», УНП 101214439

Зарегистрировано решением Минского горисполкома № 1557 от 28.12.2000

г.Минск, ул.Комсомольская, д.5А-7

Лицензия Министерства юстиции Республики Беларусь № 02240/8 от 17.02.2005 (бессрочная) на право осуществления деятельности по оказанию юридических услуг - риэлтерских услуг.

203 256.00 BYN 72 000.00$ 3 736.33 BYN/м2 1 323.53$/м2
Предложить свою цену
Заполните телефон!
Введите цену или отметьте галочкой "Консультация по кредиту"
Нажимая "Отправить" я даю согласие на обработку персональных данных
Область
Могилёвская область
Район области
Могилёвский
Кол-во комнат квартиры
2
Кол-во раздельных комнат
2
Площадь(О/Ж/К)
54.40/29.40/9.20
Этаж
9/10
Год постройки
2010
Материалы дома
Панель
Балконы
Лоджия застеклена: 1
Сан. узел (кол-во)
Раздельный: 1
Высота потолка
2.6
Номер и дата договора
49/16 от 22-04-2026
Посмотреть на карте