place
Наши филиалы: Могилев

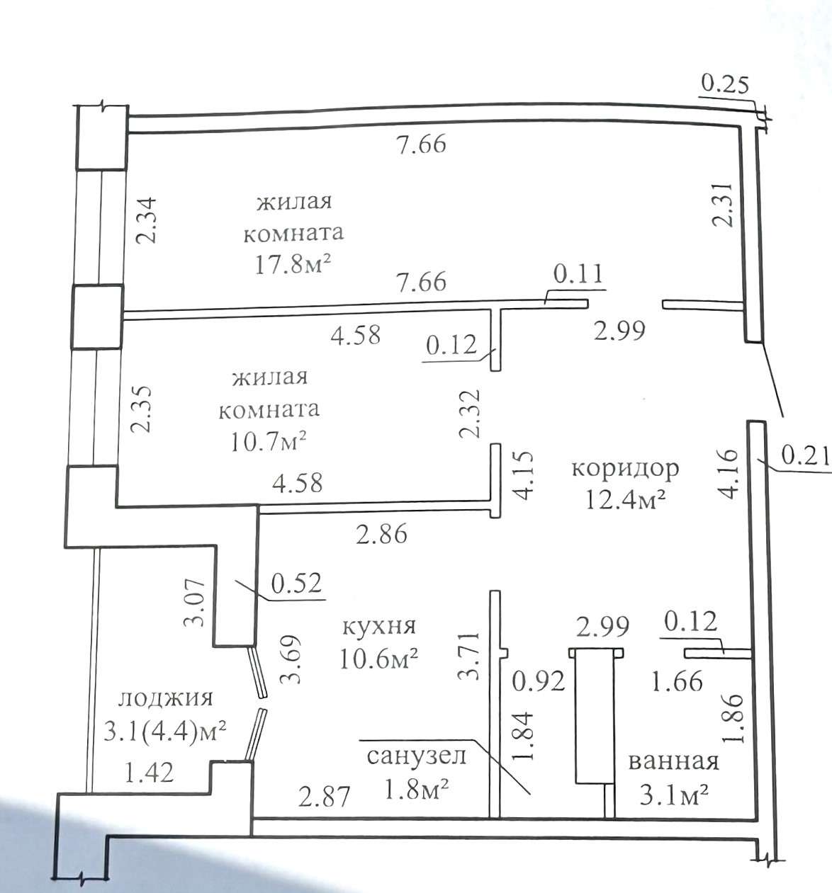
2 комнатная квартира

Продажа Бобруйск, Минская, 62

В самом центре города продается 2-комнатная квартира с черновой отделкой по улице Минская, д. 62. Расположена на 2 этажного монолитного дома 2024 года постройки. В квартире установлена металлическая входная дверь, панорамные окна ПВХ на лоджии, закрытая территория, видеонаблюдение. Черновая отделка позволяет воплотить в жизнь все ваши дизайнерские задумки. Квартира светлая и теплая. Объект расположен в районе с развитой инфраструктурой. В шаговой доступности: магазины, рынок « Октябрьский», школы, детский сад, остановка общественного транспорта.

Рассмотрим все формы расчета. Приглашаем на просмотр!

139 270.00 BYN 47 500.00$ 2 469.33 BYN/м2 842.20$/м2
Предложить свою цену
Заполните телефон!
Введите цену или отметьте галочкой "Консультация по кредиту"
Нажимая "Отправить" я даю согласие на обработку персональных данных
Область
Могилёвская область
Район области
Бобруйский
Кол-во комнат квартиры
2
Кол-во раздельных комнат
2
Площадь(О/Ж/К)
56.40/28.50/10.56
Этаж
2/19
Год постройки
2024
Материалы дома
Блок
Ремонт
Хороший
Балконы
Лоджия застеклена: 1
Сан. узел (кол-во)
Раздельный: 1
Высота потолка
2.5
Номер и дата договора
55/1 от 24-03-2026
Посмотреть на карте