place
Наши филиалы: Могилев

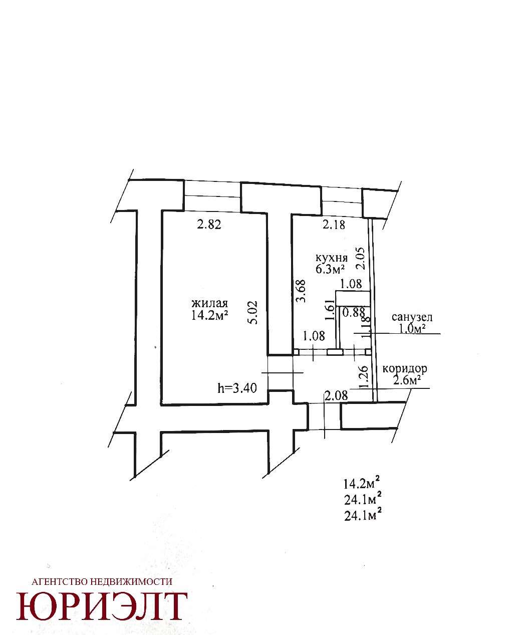
1 комнатная квартира

Продажа Могилёв, Ленинская, 28 к.А

Продается 1-комнатная квартира в самом центре г. Могилева, ул. Ленинская, 28А, дом - историческая ценность.

Общей площадью 24.1 м2, жилая 14.2м2, кухня 6.3 м2. Квартира расположена на 1 этаже 2-этажного кирпичного дома, с готовым, качественным ремонтом. Квартира продаётся с мебелью, техникой (деревянными элементами ручной работы)

В шаговой доступности вся инфраструктура.

Полностью заменены внутренние инженерные сети. В настоящее время во дворе ведётся строительство нового, элитного жилого дома малой этажности с уже утвержденным планом благоустройства прилегающей территории.

 

Более подробная информация по телефону указанному в объявлении. Просмотр по предварительной договоренности в удобное для вас время.

 

Договор 27/16 от 04.03.2026г

 

ОДО «Юриэлт», УНП 101214439

Зарегистрировано решением Минского горисполкома № 1557 от 28.12.2000

г.Минск, ул.Комсомольская, д.5А-7

Лицензия Министерства юстиции Республики Беларусь № 02240/8 от 17.02.2005 (бессрочная) на право осуществления деятельности по оказанию юридических услуг - риэлтерских услуг.

130 474.00 BYN 44 500.00$ 5 413.85 BYN/м2 1 846.47$/м2
Предложить свою цену
Заполните телефон!
Введите цену или отметьте галочкой "Консультация по кредиту"
Нажимая "Отправить" я даю согласие на обработку персональных данных
Область
Могилёвская область
Район области
Могилёвский
Кол-во комнат квартиры
1
Кол-во раздельных комнат
1
Площадь(О/Ж/К)
24.10/14.20/6.30
Этаж
1/2
Материалы дома
Кирпич
Балконы
Нет
Сан. узел (кол-во)
Совмещенный: 1
Высота потолка
3.4
Номер и дата договора
27/16 от 04-03-2026
Посмотреть на карте