place
Наши филиалы: Могилев

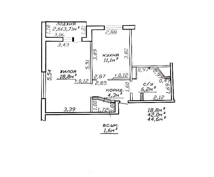
1 комнатная квартира

Продажа Могилёв, Крупской, 204

Продается 1-комнатная квартира в г.Могилев, ул. Крупской, 204, 1977 года постройки.

Общей площадью 43 м2, жилая 18.8 м2, кухня 11.1 м2. Квартира расположена на 1 этаже 9-и этажного панельного дома. Утеплена.

В квартире сделан качественный ремонт. Стяжка на полу, заменена проводка и сантехника. Покупателю остается вся мебель.

В шаговой доступности вся инфраструктура: детский сад, школа, поликлиника, продовольственные и не продовольственные магазины, Дворец гимнастики, остановка общественного транспорта возле дома.

 

Более подробная информация по телефону указанному в объявлении. Просмотр по предварительной договоренности в удобное для вас время.

 

Договор 14/16 от 03.02.2026г

 

ОДО «Юриэлт», УНП 101214439,

Лицензия

Министерства юстиции РБ

N°02240/8 от 17.02.2005 года (бессрочная) на право осуществления деятельности по оказанию юридических услуг - риэлтерских услуг.

165 508.80 BYN 58 000.00$ 3 849.05 BYN/м2 1 348.84$/м2
Предложить свою цену
Заполните телефон!
Введите цену или отметьте галочкой "Консультация по кредиту"
Нажимая "Отправить" я даю согласие на обработку персональных данных
Область
Могилёвская область
Район области
Могилёвский
Кол-во комнат квартиры
1
Кол-во раздельных комнат
1
Площадь(О/Ж/К)
43.00/18.80/11.10
Этаж
1/9
Материалы дома
Панель
Балконы
Лоджия: 1
Сан. узел (кол-во)
Совмещенный: 1
Номер и дата договора
14/16 от 03-02-2026
Посмотреть на карте